深圳小产权房网每日为你实时更新深圳、东莞、惠州小产权房屋最新价格,房源覆盖深圳、沙井、公明、龙岗、西乡、福永及东莞长安、虎门、大朗、塘厦等区域。24小时客服热线:13538226807
东莞厚街寮夏小产权房《维港悦居》
5880元/㎡任选送精装
20套源不限楼层,不限房型
8个名额,抢完即止
户型
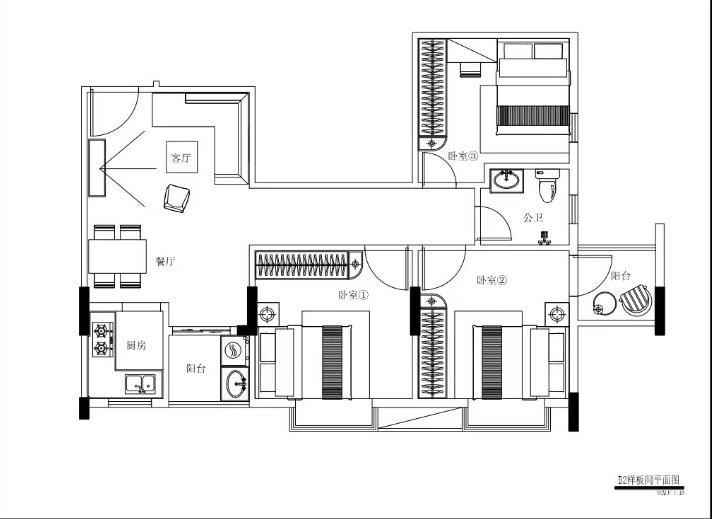
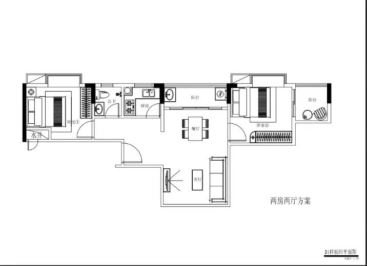
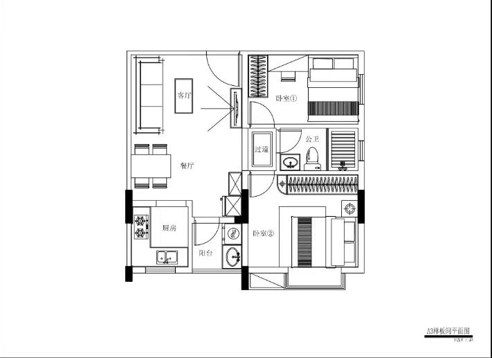
精品两房69.82~90.41㎡
轻奢三房94.31~110.97㎡
交房标准:毛胚
付款方式
首付3成,8年银行分期
三公园(500米)
30万平方米福神岗公园
15万平方米文化公园
19万平方米龙阁山公园
两中心:(500米)
行政服务中心
10万平方米体育中心
四大商业配套
万科城市生活广场600米
万达广场/汇景城800米
寮厦市场200米
祥鸿批发市场800米
四名校
小牛津外国语学校
艺园学校
卓越维港幼儿园
万科臻山悦幼儿园
便捷大交通
200米莞太路
800米环莞快速
R2线寮厦站、陈屋站1公里
3分钟上高速
8分钟到南城CBD
10分钟虎门高铁站TOD
以下是《维港悦居》楼盘视频图片资料:
销售电话:13632745771多经理




















