深圳小产权房网每日为你实时更新深圳、东莞、惠州小产权房屋最新价格,房源覆盖深圳、沙井、公明、龙岗、西乡、福永及东莞长安、虎门、大朗、塘厦等区域。24小时客服热线:13538226807
深圳小产权房网
深圳
龙华新区
宝安
龙岗区
光明新区
东莞
惠州
关内
坪山
首页
宝安
光明新区
龙华新区
龙岗区
关内
惠州
东莞
坪山
西乡
石岩
福永
沙井
松岗
光明
公明
龙华
民治
大浪
观澜
龙岗
布吉
坂田
平湖
坪地
南山
福田
罗湖
盐田
惠阳
惠东
博罗
长安
虎门
厚街
大朗
大岭山
塘厦
凤岗
东坑
樟木头
常平
横沥
企石
茶山
寮步
黄江
石排
其他
当前位置:
粤房吧
>
东莞小产权房
>
凤岗小产权房
> 东莞凤岗镇端风小学旁《凤旺楼》全新小产权房楼盘,火爆开售
东莞凤岗镇端风小学旁《凤旺楼》全新小产权房楼盘,火爆开售
价格:¥
5200元起
楼盘名称:
《凤旺楼》
楼盘类型:
东莞凤岗小产权房
楼盘概况:
两房 三房
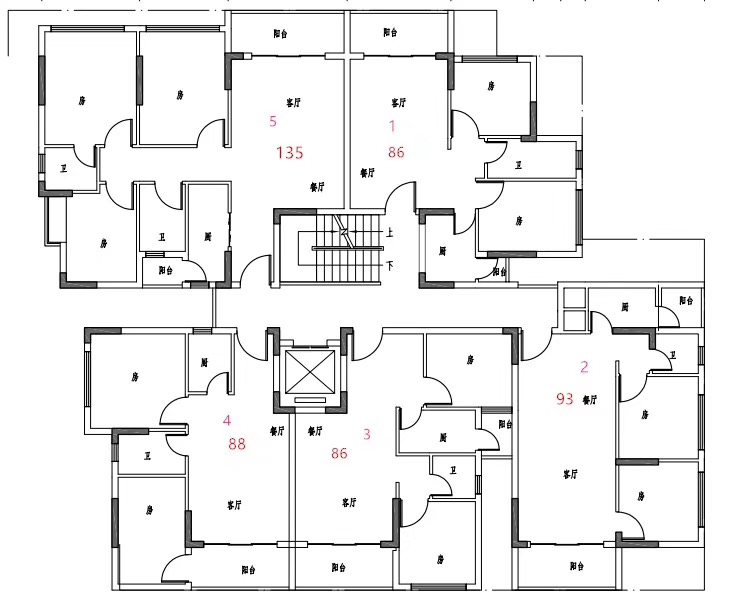
户型面积:
86-88-93-135平
交房标准:
毛坯
楼盘地址:
凤岗端风小学旁
销售电话:
13538226807 祝经理 18028750063 程经理
在线QQ:
项目介绍
2019-03-27
流量:1734
东莞凤岗镇端风小学旁《凤旺楼》全新小产权房楼盘,火爆开售
在售稀缺经典户型:
86平两房两厅一卫朝西
86平两房两厅一卫朝东南
88平两房两厅一卫朝东南
93平两房两厅两卫朝东南
135平三房两厅两卫朝西
两房和三房,刚需投资首选,楼盘起步价5200一平起
教育配套:金宝贝幼儿园,竞业幼儿园,凤岗镇方正小学,端风小学,育新小学,金凤凰学校,金凤凰初中部,教育一站式,让您的孩子教育无忧
休闲配套:凤岗镇人民公园,碧湖森森林公园,园龙山森林公园,油甘埔公园,坐享公园纯氧生活
交通配套:外环高速,武深高速,与深圳龙岗平湖零距离,东升二路与深圳龙岗无缝衔接,龙凤山庄4公里,凤岗沃尔玛2公里,龙岗中心城5公里
商场配套:凤岗沃尔玛5分钟车程,好又多购物中心,诚信百货,欣佳百货,塘沥凤凰围农贸市场!
热门推荐
平湖17栋大型花园小区《鹿湖花园》精装复式美宅 户户带阳台 带停车场 可分期十年
塘厦碧桂园天麓山旁《香蜜国际》5栋大型花园统建楼 带燃气和停车场
东莞大朗6栋500套大型统建楼「松湖明珠」松山湖花园小区房 使用率90% 均价5880元起
松山湖大朗《中心花园》5栋封闭式花园小区 自带大型商业和带下停车场 均价5980元起
松山湖大朗6栋大型村委房统建楼《盛世天境》自带地下停车场 天燃气入户,发绿本
凤岗小产权房
+ 查看更多>>
东莞凤岗凤凰围2栋花园小区《金凤花园》双阳台带飘窗 通燃气带停车场 首付三成
单价:¥
5980元
凤岗官井头三栋临深新盘「龙庭家园」南北通透 停车无忧 商业环绕 总价17万起
单价:¥
按套卖
东莞凤岗五联石头岭精装小产权房「澜湖大厦」观澜、平湖0距离 总价35.8万起 首付一半
单价:¥
6000元起
观澜牛湖旁两栋统建楼凤岗「牛湖公馆」大阳台采光好 三房52.8万起 四房59.8万
单价:¥
4688元起
宝安小产权房
西乡小产权房
石岩小产权房
福永小产权房
沙井小产权房
松岗小产权房
光明新区小产权房
光明小产权房
公明小产权房
龙华新区小产权房
龙华小产权房
民治小产权房
大浪小产权房
观澜小产权房
龙岗区小产权房
龙岗小产权房
布吉小产权房
坂田小产权房
平湖小产权房
坪地小产权房
关内小产权房
南山小产权房
福田小产权房
罗湖小产权房
盐田小产权房
惠州小产权房
惠阳小产权房
惠东小产权房
博罗小产权房
东莞小产权房
长安小产权房
虎门小产权房
厚街小产权房
大朗小产权房
大岭山小产权房
塘厦小产权房
凤岗小产权房
东坑小产权房
樟木头小产权房
常平小产权房
横沥小产权房
企石小产权房
茶山小产权房
寮步小产权房
黄江小产权房
石排小产权房
其他小产权房
坪山小产权房
24小时客服热线:13538226807 粤房吧提供深圳小产权房及东莞小产权房出售信息。 Copyright @ 2018 www.yuefangba.cn All Rights Reserved 粤房吧 版权所有
手机版
网站地图